板喂機防漏結構技術及實用總結
瀏覽次數:發布日期:2021-02-21
背景技術:
本技術屬于板喂機技術領域,具體涉及一種板喂機防漏結構。板式喂料機也稱板喂機,是連續輸送物料機械的一種,用于沿水平或傾斜方向向破碎機、輸送機或其他工作機械連續均勻地配給和轉運物料,適用于大中型水泥廠生產線中松散、塊狀、量大喂料工序,能運送大塊,可在高溫高濕惡劣環境中可靠工作,尤其對運送大塊、高溫和尖銳的物料最為適合,并能在露天和潮濕惡劣的環境下可靠地工作。
現有的板喂機,在進料端進料時會有少量碎石、沙土等物料掉落,掉落的物料會在板喂機的頭端慢慢積壓,不及時清理的話會影響到輸送帶的正常運行。但是在運行過程中靠近輸送帶清理掉落的物料又非常危險。
技術實現要素:
為解決上述技術問題,本技術采用的技術方案是:板喂機防漏結構,所述板喂機包括有機體,機體包括有進料端和出料端,機體的兩側分別設有側擋板,機體內安裝有輸送裝置,所述防漏結構包括有罩在進料端的頭罩,所述頭罩為由左側板、右側板、前蓋板和上蓋板圍成的兩面就有開口的罩體,前蓋板的兩側分別固定連接左側板的和右側板,上蓋板的三邊分別連接左側板、右側板和前蓋板,左側板的一邊通過螺栓可拆卸的連接機體一側的側擋板,右側板的一邊通過螺栓可拆卸的連接機體另一側的側擋板,所述頭罩內安裝有接料裝置。
作為上述技術方案的優選,所述接料裝置包括有前斜導向板和后斜導向板,后斜導向板與前斜導向板形成v型結構,前斜導向板的一端連接前蓋板,另一端位于后斜導向板上,前斜導向板的兩側分別連接左側板和右側板,左側板和右側板上分別固定有踏板,踏板處具有開口,開口處蓋有活動蓋,開口分別連通v型結構的底部。
作為上述技術方案的優選,所述左側板內側和右側板內側分別安裝有導軌,后斜導向板的兩邊分別可滑動的安裝在導軌上,后斜導向板兩邊的底部分別設有若干定位孔,后斜導向板兩邊的定位孔一一對應,其中一對定位孔插有定位銷,定位銷從開口處伸出。
作為上述技術方案的優選,所述活動蓋下端靠近前蓋板的一角設有缺口,活動蓋蓋住開口時定位銷從缺口處伸出。
作為上述技術方案的優選,所述導軌由兩根上下平行設置的導桿構成,導桿傾斜設置。
作為上述技術方案的優選,所述踏板分別垂直固定在左側板或右側板上,踏板的中部具有凹槽,踏板的末端可拆卸的套接有排料槽。
作為上述技術方案的優選,所述踏板的兩側分別固定有l型擋板,l型擋板與左側板或右側板之間形成滑槽,活動蓋的兩邊分別位于滑槽中,活動蓋可在滑槽中上下移動。
本技術的有益效果是:本技術的板喂機防漏結構,能夠防止掉落的物料在板喂機旁堆積,也能夠防止大塊物料掉落后砸向板喂機四周造成安全問題,能夠方便漏落物料的清理,可以在現有的板喂機上安裝使用。
附圖說明

具體實施方式
在本技術的描述中,需要說明的是,術語“中心”、“上”、“下”、“左”、“右”、“豎直”、“水平”、“內”、“外”等指示的方位或位置關系為基于附圖所示的方位或位置關系,僅是為了便于描述本技術和簡化描述,而不是指示或暗示所指的裝置或元件必須具有特定的方位、以特定的方位構造和操作,因此不能理解為對本技術的限制。此外,術語“第一”、“第二”、“第三”僅用于描述目的,而不能理解為指示或暗示相對重要性。
在本技術的描述中,需要說明的是,除非另有明確的規定和限定,術語“安裝”、“相連”、“連接”應做廣義理解,例如,可以是固定連接,也可以是可拆卸連接,或一體地連接;可以是機械連接,也可以是電連接;可以是直接相連,也可以通過中間媒介間接相連,可以是兩個元件內部的連通。對于本領域的普通技術人員而言,可以具體情況理解上述術語在本技術中的具體含義。
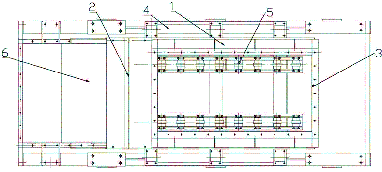
如圖所示,板喂機防漏結構,所述板喂機包括有機體1,機體1包括有進料端2和出料端3,機體1的兩側分別設有側擋板4,機體1內安裝有輸送裝置5,所述防漏結構包括有罩在進料端2的頭罩6,所述頭罩6為由左側板7、右側板8、前蓋板9和上蓋板10圍成的兩面就有開口的罩體,前蓋板9的兩側分別固定連接左側板7的和右側板8,上蓋板10的三邊分別連接左側板7、右側板8和前蓋板9,左側板7的一邊通過螺栓可拆卸的連接機體1一側的側擋板4,右側板8的一邊通過螺栓可拆卸的連接機體1另一側的側擋板4,所述頭罩6內安裝有接料裝置。進料端2容易出現少量的物料掉落的情況,設置頭罩6可以避免物料直接掉落到機體1外,提高板喂機的安全性。
進一步的,所述接料裝置包括有前斜導向板11和后斜導向板12,后斜導向板12與前斜導向板11形成v型結構,前斜導向板11的一端連接前蓋板9,另一端位于后斜導向板12上,前斜導向板11的兩側分別連接左側板7和右側板8,左側板7和右側板8上分別固定有踏板13,踏板13處具有開口,開口處蓋有活動蓋14,開口分別連通v型結構的底部。。v型結構接住從進料端2掉落的物料,從開口處將接料裝置接住的料扒出進行清理。
進一步的,所述左側板7內側和右側板8內側分別安裝有導軌,后斜導向板12的兩邊分別可滑動的安裝在導軌上,后斜導向板12兩邊的底部分別設有若干定位孔15,后斜導向板12兩邊的定位孔15一一對應,其中一對定位孔15插有定位銷16,定位銷16從開口處伸出。后斜導向板12在重力作用下沿導軌下滑,當定位銷在開口中卡住時后斜導向板12不再移動。后斜導向板12設計為位置可調,主要作用是在不影響頭罩6安裝以及輸送帶的正常運行前提下盡可能的接住從進料端2處掉落的物料。
進一步的,所述活動蓋14下端靠近前蓋板9的一角設有缺口17,活動蓋14蓋住開口時定位銷16從缺口17處伸出?;顒由w14蓋住開口,避免接料裝置中的物料從開口處滑落。
進一步的,所述導軌由兩根上下平行設置的導桿18構成,導桿18傾斜設置。
進一步的,所述踏板13分別垂直固定在左側板7或右側板8上,踏板13的中部具有凹槽19,踏板13的末端可拆卸的套接有排料槽。加裝排料槽,有利于將接料裝置中的物料從開口處扒出并裝在桶子等轉移工具中,避免物料直接從開口處落入地面在機體1旁堆積。
進一步的,所述踏板13的兩側分別固定有l型擋板20,l型擋板20與左側板7或右側板8之間形成滑槽,活動蓋14的兩邊分別位于滑槽中,活動蓋14可在滑槽中上下移動。
技術特征:
1.板喂機防漏結構,所述板喂機包括有機體,機體包括有進料端和出料端,機體的兩側分別設有側擋板,機體內安裝有輸送裝置,其特征在于,所述防漏結構包括有罩在進料端的頭罩,所述頭罩為由左側板、右側板、前蓋板和上蓋板圍成的兩面就有開口的罩體,前蓋板的兩側分別固定連接左側板的和右側板,上蓋板的三邊分別連接左側板、右側板和前蓋板,左側板的一邊通過螺栓可拆卸的連接機體一側的側擋板,右側板的一邊通過螺栓可拆卸的連接機體另一側的側擋板,所述頭罩內安裝有接料裝置。
2.如實用要求1所述的板喂機防漏結構,其特征在于,所述接料裝置包括有前斜導向板和后斜導向板,后斜導向板與前斜導向板形成v型結構,前斜導向板的一端連接前蓋板,另一端位于后斜導向板上,前斜導向板的兩側分別連接左側板和右側板,左側板和右側板上分別固定有踏板,踏板處具有開口,開口處蓋有活動蓋,開口分別連通v型結構的底部。
3.如實用要求2所述的板喂機防漏結構,其特征在于,所述左側板內側和右側板內側分別安裝有導軌,后斜導向板的兩邊分別可滑動的安裝在導軌上,后斜導向板兩邊的底部分別設有若干定位孔,后斜導向板兩邊的定位孔一一對應,其中一對定位孔插有定位銷,定位銷從開口處伸出。
4.如實用要求3所述的板喂機防漏結構,其特征在于,所述活動蓋下端靠近前蓋板的一角設有缺口,活動蓋蓋住開口時定位銷從缺口處伸出。
5.如實用要求3所述的板喂機防漏結構,其特征在于,所述導軌由兩根上下平行設置的導桿構成,導桿傾斜設置。
6.如實用要求2所述的板喂機防漏結構,其特征在于,所述踏板分別垂直固定在左側板或右側板上,踏板的中部具有凹槽,踏板的末端可拆卸的套接有排料槽。
7.如實用要求6所述的板喂機防漏結構,其特征在于,所述踏板的兩側分別固定有l型擋板,l型擋板與左側板或右側板之間形成滑槽,活動蓋的兩邊分別位于滑槽中,活動蓋可在滑槽中上下移動。
技術總結
本技術公開了板喂機防漏結構,板喂機包括有機體,機體包括有進料端和出料端,機體的兩側分別設有側擋板,防漏結構包括有罩在進料端的頭罩,頭罩為由左側板、右側板、前蓋板和上蓋板圍成的兩面就有開口的罩體,左側板的一邊通過螺栓可拆卸的連接機體一側的側擋板,右側板的一邊通過螺栓可拆卸的連接機體另一側的側擋板,頭罩內安裝有接料裝置。本技術的板喂機防漏結構,能夠防止掉落的物料在板喂機旁堆積,也能夠防止大塊物料掉落后砸向板喂機四周造成安全問題,能夠方便漏落物料的清理,可以在現有的板喂機上安裝使用。
本技術屬于板喂機技術領域,具體涉及一種板喂機防漏結構。板式喂料機也稱板喂機,是連續輸送物料機械的一種,用于沿水平或傾斜方向向破碎機、輸送機或其他工作機械連續均勻地配給和轉運物料,適用于大中型水泥廠生產線中松散、塊狀、量大喂料工序,能運送大塊,可在高溫高濕惡劣環境中可靠工作,尤其對運送大塊、高溫和尖銳的物料最為適合,并能在露天和潮濕惡劣的環境下可靠地工作。
現有的板喂機,在進料端進料時會有少量碎石、沙土等物料掉落,掉落的物料會在板喂機的頭端慢慢積壓,不及時清理的話會影響到輸送帶的正常運行。但是在運行過程中靠近輸送帶清理掉落的物料又非常危險。
技術實現要素:
為解決上述技術問題,本技術采用的技術方案是:板喂機防漏結構,所述板喂機包括有機體,機體包括有進料端和出料端,機體的兩側分別設有側擋板,機體內安裝有輸送裝置,所述防漏結構包括有罩在進料端的頭罩,所述頭罩為由左側板、右側板、前蓋板和上蓋板圍成的兩面就有開口的罩體,前蓋板的兩側分別固定連接左側板的和右側板,上蓋板的三邊分別連接左側板、右側板和前蓋板,左側板的一邊通過螺栓可拆卸的連接機體一側的側擋板,右側板的一邊通過螺栓可拆卸的連接機體另一側的側擋板,所述頭罩內安裝有接料裝置。
作為上述技術方案的優選,所述接料裝置包括有前斜導向板和后斜導向板,后斜導向板與前斜導向板形成v型結構,前斜導向板的一端連接前蓋板,另一端位于后斜導向板上,前斜導向板的兩側分別連接左側板和右側板,左側板和右側板上分別固定有踏板,踏板處具有開口,開口處蓋有活動蓋,開口分別連通v型結構的底部。
作為上述技術方案的優選,所述左側板內側和右側板內側分別安裝有導軌,后斜導向板的兩邊分別可滑動的安裝在導軌上,后斜導向板兩邊的底部分別設有若干定位孔,后斜導向板兩邊的定位孔一一對應,其中一對定位孔插有定位銷,定位銷從開口處伸出。
作為上述技術方案的優選,所述活動蓋下端靠近前蓋板的一角設有缺口,活動蓋蓋住開口時定位銷從缺口處伸出。
作為上述技術方案的優選,所述導軌由兩根上下平行設置的導桿構成,導桿傾斜設置。
作為上述技術方案的優選,所述踏板分別垂直固定在左側板或右側板上,踏板的中部具有凹槽,踏板的末端可拆卸的套接有排料槽。
作為上述技術方案的優選,所述踏板的兩側分別固定有l型擋板,l型擋板與左側板或右側板之間形成滑槽,活動蓋的兩邊分別位于滑槽中,活動蓋可在滑槽中上下移動。
本技術的有益效果是:本技術的板喂機防漏結構,能夠防止掉落的物料在板喂機旁堆積,也能夠防止大塊物料掉落后砸向板喂機四周造成安全問題,能夠方便漏落物料的清理,可以在現有的板喂機上安裝使用。
附圖說明

具體實施方式
在本技術的描述中,需要說明的是,術語“中心”、“上”、“下”、“左”、“右”、“豎直”、“水平”、“內”、“外”等指示的方位或位置關系為基于附圖所示的方位或位置關系,僅是為了便于描述本技術和簡化描述,而不是指示或暗示所指的裝置或元件必須具有特定的方位、以特定的方位構造和操作,因此不能理解為對本技術的限制。此外,術語“第一”、“第二”、“第三”僅用于描述目的,而不能理解為指示或暗示相對重要性。
在本技術的描述中,需要說明的是,除非另有明確的規定和限定,術語“安裝”、“相連”、“連接”應做廣義理解,例如,可以是固定連接,也可以是可拆卸連接,或一體地連接;可以是機械連接,也可以是電連接;可以是直接相連,也可以通過中間媒介間接相連,可以是兩個元件內部的連通。對于本領域的普通技術人員而言,可以具體情況理解上述術語在本技術中的具體含義。
如圖所示,板喂機防漏結構,所述板喂機包括有機體1,機體1包括有進料端2和出料端3,機體1的兩側分別設有側擋板4,機體1內安裝有輸送裝置5,所述防漏結構包括有罩在進料端2的頭罩6,所述頭罩6為由左側板7、右側板8、前蓋板9和上蓋板10圍成的兩面就有開口的罩體,前蓋板9的兩側分別固定連接左側板7的和右側板8,上蓋板10的三邊分別連接左側板7、右側板8和前蓋板9,左側板7的一邊通過螺栓可拆卸的連接機體1一側的側擋板4,右側板8的一邊通過螺栓可拆卸的連接機體1另一側的側擋板4,所述頭罩6內安裝有接料裝置。進料端2容易出現少量的物料掉落的情況,設置頭罩6可以避免物料直接掉落到機體1外,提高板喂機的安全性。
進一步的,所述接料裝置包括有前斜導向板11和后斜導向板12,后斜導向板12與前斜導向板11形成v型結構,前斜導向板11的一端連接前蓋板9,另一端位于后斜導向板12上,前斜導向板11的兩側分別連接左側板7和右側板8,左側板7和右側板8上分別固定有踏板13,踏板13處具有開口,開口處蓋有活動蓋14,開口分別連通v型結構的底部。。v型結構接住從進料端2掉落的物料,從開口處將接料裝置接住的料扒出進行清理。
進一步的,所述左側板7內側和右側板8內側分別安裝有導軌,后斜導向板12的兩邊分別可滑動的安裝在導軌上,后斜導向板12兩邊的底部分別設有若干定位孔15,后斜導向板12兩邊的定位孔15一一對應,其中一對定位孔15插有定位銷16,定位銷16從開口處伸出。后斜導向板12在重力作用下沿導軌下滑,當定位銷在開口中卡住時后斜導向板12不再移動。后斜導向板12設計為位置可調,主要作用是在不影響頭罩6安裝以及輸送帶的正常運行前提下盡可能的接住從進料端2處掉落的物料。
進一步的,所述活動蓋14下端靠近前蓋板9的一角設有缺口17,活動蓋14蓋住開口時定位銷16從缺口17處伸出?;顒由w14蓋住開口,避免接料裝置中的物料從開口處滑落。
進一步的,所述導軌由兩根上下平行設置的導桿18構成,導桿18傾斜設置。
進一步的,所述踏板13分別垂直固定在左側板7或右側板8上,踏板13的中部具有凹槽19,踏板13的末端可拆卸的套接有排料槽。加裝排料槽,有利于將接料裝置中的物料從開口處扒出并裝在桶子等轉移工具中,避免物料直接從開口處落入地面在機體1旁堆積。
進一步的,所述踏板13的兩側分別固定有l型擋板20,l型擋板20與左側板7或右側板8之間形成滑槽,活動蓋14的兩邊分別位于滑槽中,活動蓋14可在滑槽中上下移動。
技術特征:
1.板喂機防漏結構,所述板喂機包括有機體,機體包括有進料端和出料端,機體的兩側分別設有側擋板,機體內安裝有輸送裝置,其特征在于,所述防漏結構包括有罩在進料端的頭罩,所述頭罩為由左側板、右側板、前蓋板和上蓋板圍成的兩面就有開口的罩體,前蓋板的兩側分別固定連接左側板的和右側板,上蓋板的三邊分別連接左側板、右側板和前蓋板,左側板的一邊通過螺栓可拆卸的連接機體一側的側擋板,右側板的一邊通過螺栓可拆卸的連接機體另一側的側擋板,所述頭罩內安裝有接料裝置。
2.如實用要求1所述的板喂機防漏結構,其特征在于,所述接料裝置包括有前斜導向板和后斜導向板,后斜導向板與前斜導向板形成v型結構,前斜導向板的一端連接前蓋板,另一端位于后斜導向板上,前斜導向板的兩側分別連接左側板和右側板,左側板和右側板上分別固定有踏板,踏板處具有開口,開口處蓋有活動蓋,開口分別連通v型結構的底部。
3.如實用要求2所述的板喂機防漏結構,其特征在于,所述左側板內側和右側板內側分別安裝有導軌,后斜導向板的兩邊分別可滑動的安裝在導軌上,后斜導向板兩邊的底部分別設有若干定位孔,后斜導向板兩邊的定位孔一一對應,其中一對定位孔插有定位銷,定位銷從開口處伸出。
4.如實用要求3所述的板喂機防漏結構,其特征在于,所述活動蓋下端靠近前蓋板的一角設有缺口,活動蓋蓋住開口時定位銷從缺口處伸出。
5.如實用要求3所述的板喂機防漏結構,其特征在于,所述導軌由兩根上下平行設置的導桿構成,導桿傾斜設置。
6.如實用要求2所述的板喂機防漏結構,其特征在于,所述踏板分別垂直固定在左側板或右側板上,踏板的中部具有凹槽,踏板的末端可拆卸的套接有排料槽。
7.如實用要求6所述的板喂機防漏結構,其特征在于,所述踏板的兩側分別固定有l型擋板,l型擋板與左側板或右側板之間形成滑槽,活動蓋的兩邊分別位于滑槽中,活動蓋可在滑槽中上下移動。
技術總結
本技術公開了板喂機防漏結構,板喂機包括有機體,機體包括有進料端和出料端,機體的兩側分別設有側擋板,防漏結構包括有罩在進料端的頭罩,頭罩為由左側板、右側板、前蓋板和上蓋板圍成的兩面就有開口的罩體,左側板的一邊通過螺栓可拆卸的連接機體一側的側擋板,右側板的一邊通過螺栓可拆卸的連接機體另一側的側擋板,頭罩內安裝有接料裝置。本技術的板喂機防漏結構,能夠防止掉落的物料在板喂機旁堆積,也能夠防止大塊物料掉落后砸向板喂機四周造成安全問題,能夠方便漏落物料的清理,可以在現有的板喂機上安裝使用。
上一篇:高溫物料鱗板輸送機設計技術及要點
下一篇:鱗板機撥料打散裝置設計技術概要